DBID:
620
Systémové číslo:
P21V00000036
Datum zahájení:
20.05.2021
Nabídku podat do:
04.06.2021 10:00
Název, druh veřejné zakázky a popis předmětu
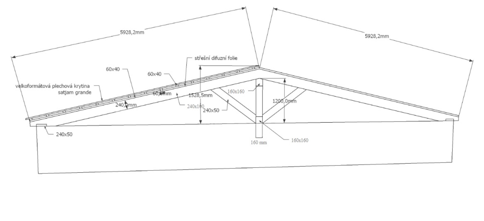
- Název: Rekonstrukce střechy akumulační nádrže
- Druh veřejné zakázky: Stavební práce
Stručný popis předmětu:
Rekonstrukce střechy akumulační nádrže
Postup zadání, předpokládaná hodnota
-
Postup:
VZMR s uveřejněním výzvy
-
Režim veřejné zakázky:
VZ malého rozsahu
- Předpokládaná hodnota:
neuvedena
Zadavatel
- Úřední název: Krnovské vodovody a kanalizace, s.r.o.
- IČO: 47674148
- Poštovní adresa:
Maxima Gorkého 816/11
Krnov 794 01
- Id profilu zadavatele ve VVZ: 642822
Adresa kontaktního místa
Nabídky, resp. žádosti o účast podávat na:
Maxima Gorkého 816/11
Krnov 794 01
Kontakt
Žádné záznamy k zobrazení.
Kvalifikační dokumentace není poskytována (resp. je součástí zadávací dokumentace).
Zadávací dokumentace je poskytována elektronicky bez omezení.
Zadávací dokumentace - soubory ke stažení
Žádné vysvětlení, doplnění či změny zadávací dokumentace k zobrazení. Zkontrolujte též blok Zadávací dokumentace.
Žádné dokumenty k zobrazení.
Seznam účastníků
Žádný účastník není přiřazen.
Vybraný dodavatel
Datum uzavření smlouvy: 21.06.2023
Vybraný dodavatel není nastaven.
Skutečně uhrazená cena
Stav:
Probíhá plnění smlouvy
Žádný záznam.